Call Us Now: +39 0423 498783

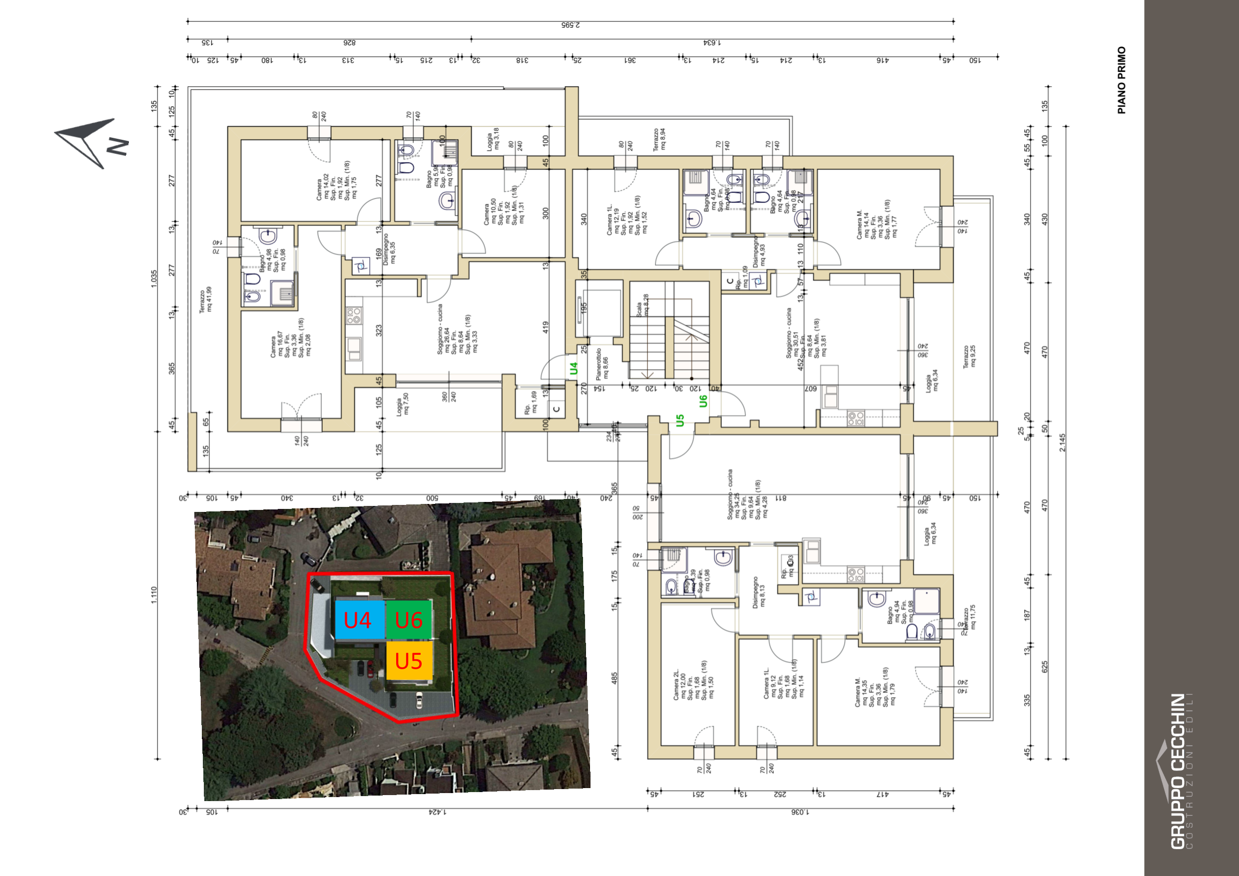
VIA GIOTTO – Castelfranco Veneto –

Residenziale

Visualizza il Capitolato finiture

Vedi Planimetrie